文/粤进深 严明会
自今年6月拿下地块,位于深圳光明的天境云玺,似乎不缺存在感。
市场上,不时就能看到关于项目的消息。
但要说这些信息有多重要吧,也并不是。
在一个多月前,这个项目曾传出过小区的效果图。但也仅限于效果图。
除了能看到小区的楼栋数量,以及大概的户型配置,其余信息披露的并不多。
而就在近日,项目又疑似传出了户型图。
但是吧,也依然比较粗糙,而且还是部分的户型图,并不全面。
当然,也不是不能看,凑合着看吧。
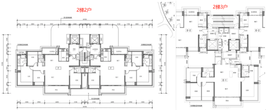
天境云玺共规划打造9栋高层住宅。
当中,8栋应为二十多层高的塔楼,1栋为十多层高的板楼。
户型配置上,一层两户到一层六户的设计,都有。
产品面积主要为83-166㎡。
整个小区围合式布局,一层两户的“楼王”单位在小区的中央。
园林中央的板楼为2梯2户,也就是最大面积的166㎡产品。
最新传出的户型看,166㎡的“楼王”户型,有专梯入户,有入户玄关;
南北双阳台,四个卧室里面,两个是套房。也就是四房三卫。
最小的83㎡户型,三房两卫,竖厅的阳台并不大。


其余的户型,看不出具体面积,而且很多还是局部户型图,所以不是很全面。
但可以确定的有以下几点:
1)新规产品,所有户型飘窗挺多的,使用率应该不错。
只是个别户型的部分房间,很多是飘窗“偷”出来的面积,空间上略显局促。
2)除了“楼王”单位166㎡,其余一些户型也有双阳台设计;
或在餐厅位置有飘窗,产品整体通透性应该较好。
3)主要是不足。
项目同一层楼的户型,距离都比较近,部分户型的视野、隐私性估计较差。
比如,两梯三户的中间户型,西边的书房跟另一户型的阳台靠得就比较近;
东边的主卧衣帽间飘窗,也与另一户型的阳台靠的很近。
两梯六户的楼栋,中间的两户,其书房的飘窗分别正对着另一户型的飘窗和另一户型的生活阳台,并且距离都挺近。
两梯五户的中间户型,同样存在类似这样的窥视跟视野遮挡情况。
所以应该说,虽然天境云玺在新规上做得比较好。
但在户型与户型之间的这种间距,与视野错位上,做得不是很足。
甚至还不如一些以往的非新规产品。
毕竟,比如说像两梯三户这种楼栋,户型配比并不算多。
其实通过对楼栋不同的户型单元进行扭向,就尽可能可以避免对视、视野遮挡这种情况发生的。
以往的很多一些楼盘,不管是新规还是非新规,就是这样干的。
但从天境云玺传出的户型图看,这一点并没有做得很好。
因此项目除了两梯两户的户型,整体在对视、隐私这块或多或少都存在一定的问题。
这种百密一疏的情况,跟天境云玺开发商的强强联合;
以及以往所传达的对项目的重视,似乎形成鲜明的对比。
毕竟几大国企的联合,外界普遍认为,项目能带给市场不少的惊喜。
天境云玺的开发主体为深圳市振业天发开发建设有限公司(以下简称“振业天发”)。
该公司注册资本8亿元,法定代表人、董事、经理为毛中义。
据公开资料,毛中义是振业集团深圳公司党支部书记执行董事。
目前股权方面,振业天发由振业集团、天健集团、光明建设集团分别持有40%、30%、30%。
没错,天境云玺项目地块,是由三家深圳国企拿下并开发的。
今年6月27日,深圳光明中心区宅地A509-0074号地块出让。
最终被振业、天健、光明建发组成的联合体拿下。总成交价19.94亿元,成交楼面价1.838万元/㎡。
天境云玺地处光明街道东周社区,位于华夏路与周家大道交汇处。
占地约3.5万㎡,容积率3.1,建筑面积约10.85万㎡。
项目周边教育、商业等配套较为完善。距离地铁6号线光明大街站,也仅1公里左右。
企业内部看得出来,天境云玺应该说还是被放在挺重要位置的。
此前项目奠基,包括振业集团董事长宋扬、总裁李伟,天健集团总裁何云武;
以及光明建发集团董事长杨家勇,均出席了现场。
当时,振业集团官微就发文称:
项目的奠基,标志着振业集团在打造新一代“好房子”产品、全面助力人居品质提升方面迈上了新台阶。
其表示,未来,三家国企将发挥三方优势协同推进,用匠心铸造精品,以高品质的项目,为光明开启品质人居的新篇章。
据了解,该项目堪称“好房子”新标准下的“深圳最大盘”之一。
也是真正意义上的新规产品:大花园社区、限楼高80米、3.1低容积、纯商品住宅社区、无保障房或回迁房。
不过眼下看来,作为实力国企强强联合的作品,天境云玺或许还能做得更好。
>>>查看更多:股市要闻