格调又一个新盘要来了。
1月24日,北辰北仓板块格调代建的24号地出规划了。
2025年8月,联合体公司以5.855亿摘得北辰高(挂)2025-24号地块,成交楼面价8345元/平米。

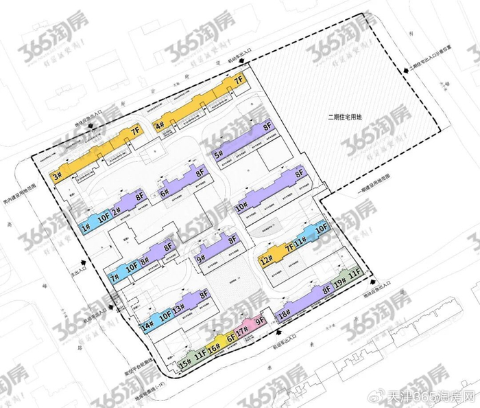
该地块分为两期开发,此次仅公示了一期规划。

一期是纯洋房组团,共19栋楼,6-11层到顶。
全架空设计,大部分首层房源有小院。
社区主入口位于西侧,与下沉庭院相连。
容积率为1.3,共416户。
粗略计算,户均面积约为152平米,主打改善大户型。

继南仓崛起之后,北仓也开始快速蓄势。
2025年城发·格调昆庭花园入市,这是格调在北辰的首个新盘。
全架空纯洋房社区,最大做出了207平米的户型,北辰新盘标准层“之最”。
在售109、114、126、136、179、207平米,均价2-2.1万/平米。

城发·格调昆庭花园实景图
2025年,北辰出让的7宗地中,有4宗来自北仓,全部为格调代建。
北仓作为北辰的核心板块,又有格调扛旗,楼市地位已迅速提升。
>>>查看更多:股市要闻